Проект купольного дома 86 кв.м // Артикул ГАЛЛ-01

Площадь: 
86 м2
Стоимость: 
40,000c
* Цена на дату публикации

Проект купольного дома 86 кв.м // Артикул ГАЛЛ-01
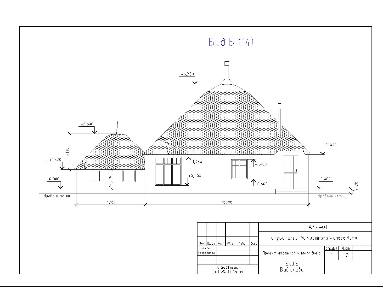
Дом с купольной кровлей.
Потолками являются скаты кровли.
Нижний уровень потолков – 2,7м в доме и 1,9м в кабинете
Верхний уровень потолков – 4,1м в доме и 2,4м в кабинете
На фотографии прототип.
В проект входят:
1. 34 листа чертежей доступных для понимания строительной бригаде любого уровня. Формат А4. Разделы КЖ и АР - т.е. фундамент, стены, утепленная кровля.
2. Расчет количества материалов. Подробный – 71 пункт калькуляции.
3. Вы можете письменно задать вопросы по проекту - отвечу подробно.

Состав фундамента: ж/бетонные забивные сваи, фундаментная плита.
Состав стен: автоклавный газобетон, штукатурка
Состав кровли: деревянные стропила, ламинированная фанера, мягкая черепица
Потолков нет – потолком является купол кровли.

Опыт проектирования: 17 лет
Опыт строительства: 22 года

Все можно сделать по интернету. Оформить и оплатить.

Готовый проект Вы сможете рассылать его в неограниченное
количество строительных компаний и выбрать лучшую цену на строительство.

Получив подробный расчет материалов, Вы сможете узнавать и записывать
текущие цены и будете точно знать какую сумму Вы потратите на строительные материалы.

У меня есть опыт строительства домов,
поэтому я не просто "рисую",
а понимаю, как это будет построено и
я могу вас проконсультировать Вас в процессе
строительства по моему проекту.

Проект разработан так, что если строить точно по чертежам, то получится именно такой дом.

Проектировал дома - для Калининграда, Смоленска, С.-Петербурга, Воронежа, Москвы, Перми, Челябинска, Севастополя,Татарстана, Горно-Алтайска, Новосибирска, Красноярска, Владивостока, Петропавловска-Камчатского, Южно-Сахалинска и других городов.

Есть сайт с другими моими проектами.

В проекте есть абсолютно вся информация, которая потребуется Вашим строителям для его реализации.

Моя почта: dom347@yandex.ru

Способы оплаты проекта смотрите здесь: http://aspdom.com/cab/profile

#готовыйпроект #готовыйпроектдома #готовыйпроекткоттеджа #построить дом #дизайн #кирпич #бревно #пила #небольшой домик #современный дом #фундамент #кровля #ипотека #хорошие дома #лучший дом #архитектор #конструктор #купитьквартиру #купитьдом #купитьодноэтажныйдом #проектодноэтажногодома #купольныйдом

Характеристики проекта:

Материал стен: 
Кирпичные, газобетон
Жилых комнат: 
3
Тип фундамента : 
Монолитная ж/б плита
Кровля: 
Битумная черепица
Наружная отделка: 
Штукатурка
Автор: 

Стоимость строительства

* 1 892 000 c * Не является точным сметным расчетом

Фасады проекта





Планы проекта
Комментарии к проекту «Проект купольного дома 86 кв.м // Артикул ГАЛЛ-01»

Популярные статьи из раздела Проектирование

Мастер спальня – это комплекс комнат в частном доме, которые...
Приглашаем специалистов строительной отрасли посетить меропр...
Разработка и управление ходом реализации загородных домов пр...
Энергоэффективность и устойчивость: Интеграция инновационных...
Безопасность и технические инновации в построении частных до...
Любая планировка не случайна. Работа над планировкой ведется...