Проект дома 264 кв.м // Артикул ПФФ-220

Площадь: 
264 м2
Стоимость: 
40,000c
* Цена на дату публикации

Готовый проект дома 264 кв.м // Артикул ПФФ-220

Большой красивый дом, удобное расположение комнат, рассчитаны все материалы вид и количество.

В проект входят:
1. 48 листов чертежей доступных для понимания строительной бригаде любого уровня. Формат А4. Разделы КЖ и АР - т.е. фундамент, стены, утепленная кровля.
2. Расчет количества материалов. Подробный – 106 пунктов калькуляции.
3. Вы можете письменно задать вопросы по проекту - отвечу подробно.

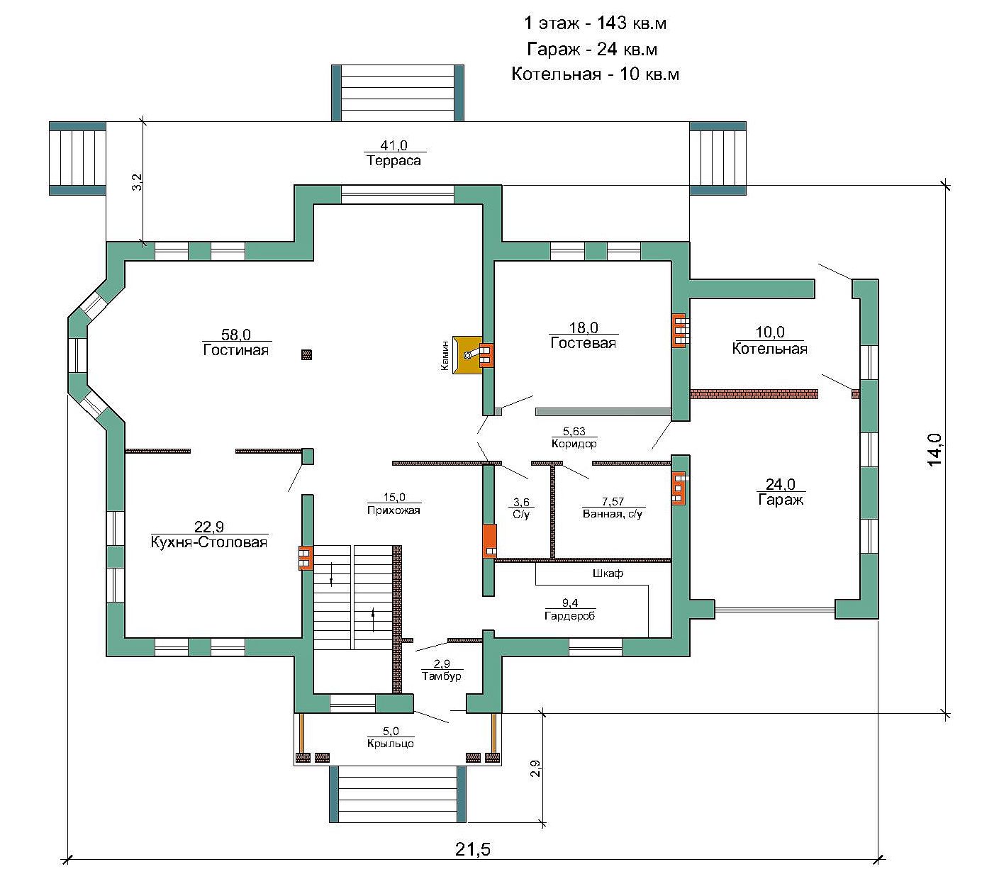
Состав фундамента: ж/бетонные буронабивные сваи и ростверк - самый надежный и экономичный вид фундамента.
Состав стен: автоклавный газобетон, утеплитель, лицевой кирпич
Состав кровли: деревянные стропила, металлочерепица

Перекрытия – заводские ж/б плиты

Высота потолков 1 этажа 3,2 м
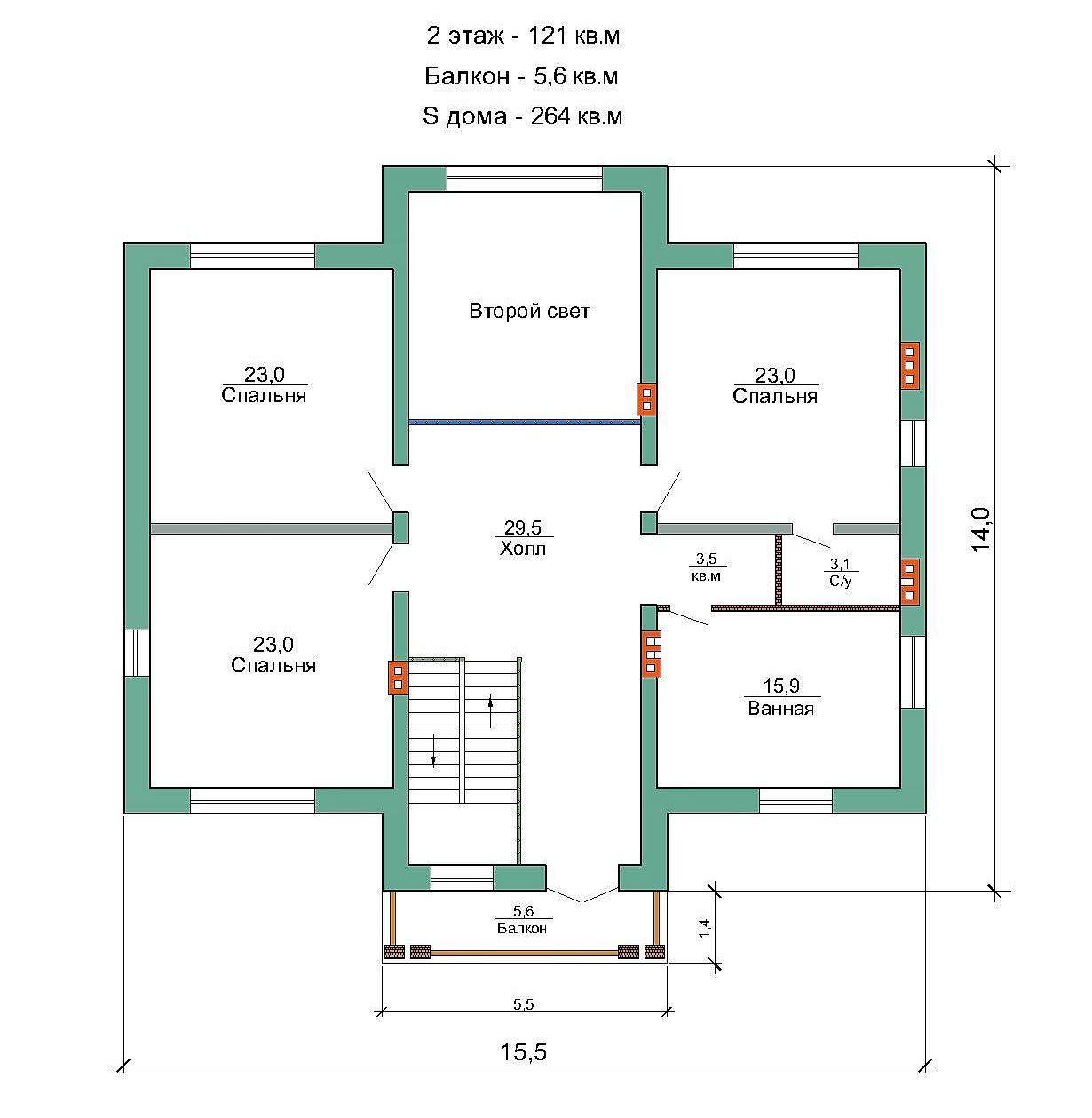
Высота потолков 2 этажа 3,0 м

Опыт проектирования: 17 лет
Опыт строительства: 22 года

Все можно сделать по интернету. Оформить и оплатить.
Готовый проект Вы сможете рассылать его в неограниченное
количество строительных компаний и выбрать лучшую цену на строительство.

Получив подробный расчет материалов, Вы сможете узнавать и записывать
текущие цены и будете точно знать какую сумму Вы потратите на строительные материалы.
У меня есть опыт строительства домов,
поэтому я не просто "рисую",
а понимаю, как это будет построено и
я могу вас проконсультировать Вас в процессе
строительства по моему проекту.

Проект разработан так, что если строить точно по чертежам, то получится именно такой дом.
Проектировал дома - для Калининграда, Смоленска, С.-Петербурга, Воронежа, Нижнего Новгорода, Ульяновска, Москвы, Перми, Челябинска, Севастополя, Казани, Горно-Алтайска, Новосибирска, Красноярска, Владивостока, Петропавловска-Камчатского, Южно-Сахалинска и других городов.

Есть сайт с другими моими проектами.

В проекте есть абсолютно вся информация, которая потребуется Вашим строителям для его реализации.

#готовыйпроект #готовыйпроектдома #готовыйпроекткоттеджа #стиль райта #построить дом #дизайн #кирпич #бревно #пила #хай тек #куб #дом с плоской кровлей #небольшой домик #стиль прерии #современный дом #барн-хаус #фундамент #кровля #ипотека #хорошие дома #лучший дом #архитектор #конструктор


По всем вопросам пишите на мою ПОЧТУ: dom347@yandex.ru

Способы оплаты проекта смотрите здесь: http://aspdom.com/cab/profile

Характеристики проекта:

Материал стен: 
Кирпичные, газобетон
Тип перекрытий: 
Железобетонное
Жилых комнат: 
5
Тип фундамента : 
Свайный
Кровля: 
Металлочерепица
Наружная отделка: 
Облицовочный кирпич
Автор: 

Стоимость строительства

* 5 808 000 c * Не является точным сметным расчетом

Фасады проекта





Планы проекта
Комментарии к проекту «Проект дома 264 кв.м // Артикул ПФФ-220»

Популярные статьи из раздела Проектирование

Мастер спальня – это комплекс комнат в частном доме, которые...
Приглашаем специалистов строительной отрасли посетить меропр...
Разработка и управление ходом реализации загородных домов пр...
Энергоэффективность и устойчивость: Интеграция инновационных...
Безопасность и технические инновации в построении частных до...
Любая планировка не случайна. Работа над планировкой ведется...