Готовый проект коттеджа 187 кв. м / Артикул Л-57

Площадь: 
187 м2
Стоимость: 
45,000c
* Цена на дату публикации

Готовый проект коттеджа 187 кв. м / Артикул Л-57

Красивый особняк с гаражом и прачечной.

Есть зеркальный вариант.

Есть вариант 200 кв.м - с еще одной комнатой, пристроенной к гостиной.

Есть варианты с кровлей из мягкой черепицы

В проект входят:
1. 50 листов чертежей доступных для понимания строительной бригаде любого уровня. Формат А4. Разделы КЖ и АР - т.е. фундамент, стены, утепленная кровля.
2. Расчет количества и материалов, подробный, 129 пунктов калькуляции.
3. Вы можете письменно задать вопросы по проекту – отвечу подробно.

Состав фундамента: ж/бетонные буронабивные сваи и ростверк
Состав стен: автоклавный газобетон, лицевой кирпич
Состав кровли: деревянные стропила, минераловатный утеплитель, металлочерепица

Опыт проектирования: 17 лет
Опыт строительства: 22 года

Все можно сделать по интернету. Оформить и оплатить.
Готовый проект Вы сможете рассылать его в неограниченное
количество строительных компаний и выбрать лучшую цену на строительство.

Получив подробный расчет материалов, Вы сможете узнавать и записывать
текущие цены и будете точно знать какую сумму Вы потратите на строительные материалы.

У меня есть опыт строительства домов,
поэтому я не просто "рисую",
а понимаю, как это будет построено и
я могу вас проконсультировать Вас в процессе
строительства по моему проекту.

Проект разработан так, что если строить точно по чертежам, то получится именно такой дом.
Проектировал дома - для Калининграда, Смоленска, С.-Петербурга, Воронежа, Нижнего Новгорода, Ульяновска, Москвы, Перми, Челябинска, Севастополя, Казани, Горно-Алтайска, Новосибирска, Красноярска, Владивостока, Петропавловска-Камчатского, Южно-Сахалинска и других городов.

Есть сайт с другими моими проектами.

В проекте есть абсолютно вся информация, которая потребуется Вашим строителям для его реализации.

#готовыйпроект #готовыйпроектдома #готовыйпроекткоттеджа #построить дом #дизайн #кирпич #бревно #пила #современный дом #особняк #фундамент #кровля #ипотека #хорошие дома #лучший дом #архитектор #конструктор


По всем вопросам пишите на мою ПОЧТУ: dom347@yandex.ru


Способы оплаты проекта смотрите здесь: http://aspdom.com/cab/profile

Характеристики проекта:

Материал стен: 
Кирпичные, газобетон
Тип перекрытий: 
Железобетонное
Жилых комнат: 
4
Тип фундамента : 
Свайный
Кровля: 
Металлочерепица
Наружная отделка: 
Облицовочный кирпич
Автор: 

Стоимость строительства

* 4 114 000 c * Не является точным сметным расчетом

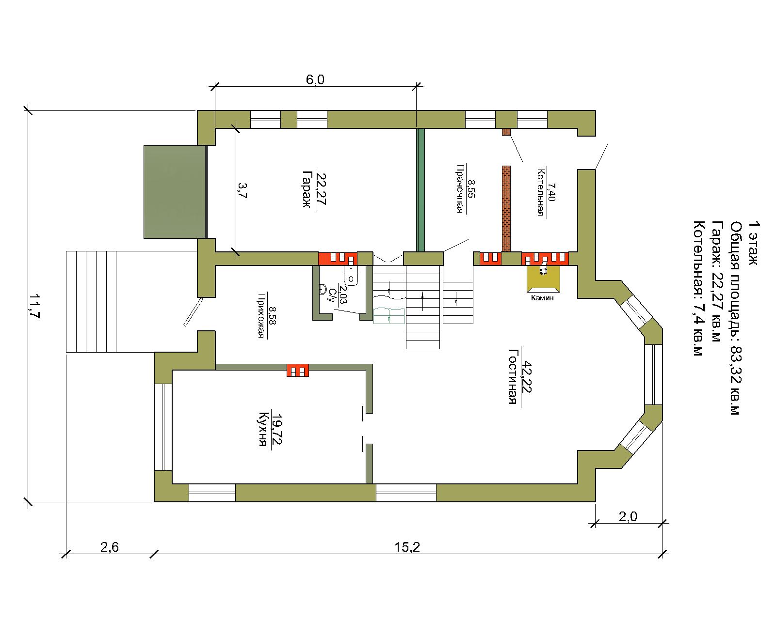
Фасады проекта





Планы проекта
Комментарии к проекту «Готовый проект коттеджа 187 кв. м / Артикул Л-57»
Наталья
Наталья , 13 июля 2017, 14:46

Здравствуйте,хотела бы купить этот проект. Спасибо.

Андрей
Андрей , 14 июля 2017, 07:53

Напишите на почту: dom347@yandex.ru Вышлю полные реквизиты для оплаты. Или можете на карту Сбербанка 4276 4900 2401 3692 Резепин Андрей Викторович

Андрей
Андрей , 14 июля 2017, 07:56

Мой телефон 8912-88-10544

Андрей
Андрей , 17 февраля 2026, 14:36

Здравствуйте. Не могли бы Вы написать, как прошло строительство. Проект был выполнен давно. на сегодняшний день я нашел в нем недостатки. Переделываю. Я давно ег не видел. сейчас добрался. Жду ответа. Спасибо.

Андрей
Андрей , 14 июля 2017, 07:14

Напишите на почту: dom347@yandex.ru Вышлю полные реквизиты для оплаты. Или можете на карту Сбербанка 4276 4900 2401 3692 Резепин Андрей Викторович

Наталья
Наталья , 14 июля 2017, 08:54

Хорошо,отправила Вам письмо. Спасибо.

Андрей
Андрей , 26 декабря 2018, 15:17

Добрый день! Все ли у Вас в порядке со строительством?

Гость
Владимир , 22 января 2019, 14:59

Представленный на сайте выше проект - это пиратская, незаконная копия проекта "Алфьфалан" https://www.alfaplan.ru/catalog/item_2263/?action=apply_filter.
Приобретая пиратскую = ворованную копию, вы ставите себя в не правовую ситуацию, которая не нужна ни одному здравомыслящему человеку.

Вот как данную ситуацию прокомментировал Генеральный директор ООО «Петербургская Юридическая Компания» Брачев Степан Викторович:

«Архитектурный проект является объектом авторского права, в силу чего ему предоставляется правовая охрана как произведению архитектуры. В соответствии со статьей 1229 Гражданского кодекса РФ, другие лица не могут использовать архитектурный проект без согласия правообладателя.

Одновременно, согласно статье 1250 Гражданского кодекса РФ, отсутствие вины нарушителя не освобождает его от обязанности, прекратить нарушение интеллектуальных прав. В частности, пресечение действий, нарушающих исключительное право на Архитектурный проект осуществляется независимо от вины нарушителя и за его счет.

Таким образом, если Вы построили дом по нелицензионному архитектурному проекту, даже если Вы не знали, что указанный проект является таковым, Вы являетесь нарушителем и по решению суда Ваш дом может быть снесен (демонтирован) за Ваш же счет!».

Андрей
Андрей , 23 января 2019, 05:52

Вы лжете. И подайте, пожалуйста в суд. Вышлите мне ВАШ проект, который у ВАС украли. Сравним. Сравним фасады и планировки. В журнале, где я видел прототип своего проекта, на кровле гибкая черепица, и меня есть такой вариант, но сделан поярче. У меня и планировки (планы) тоже 2-х вариантах. Вряд ли бы Вы так взолновались, если бы вам не понравился мой проект. Работать нужно лучше. Кстати с собой на суд возьмите оригинал в программе AutoCAD, например.

Андрей
Андрей , 23 января 2019, 05:53

Я ничего не "преобретал", проект разботал я.

Андрей
Андрей , 23 января 2019, 05:55

"произведение архитектуры" ПРОИЗВЕДЕНО лично мной, прошу без моего разрешения не прикасаться.

Андрей
Андрей , 23 января 2019, 05:59

нарушитель моего спокойствия моих добрых чувств и намерений точно должен быть наказан /в диалог не вступал, ничего не спросил, ничего не проверил - сразу побежал обвинять/ загляните в комп., там лежит оригинал проекта?

Андрей
Андрей , 12 января 2020, 10:24

За подробностями по проекту можно обратиться по телефону: 8-912-88-105-44 или на почту: dom347@yandex.ru

Популярные статьи из раздела Проектирование

Мастер спальня – это комплекс комнат в частном доме, которые...
Приглашаем специалистов строительной отрасли посетить меропр...
Разработка и управление ходом реализации загородных домов пр...
Энергоэффективность и устойчивость: Интеграция инновационных...
Безопасность и технические инновации в построении частных до...
Любая планировка не случайна. Работа над планировкой ведется...