Готовый проект дома 184 кв.м // Артикул ЮМ-318

Площадь: 
184 м2
Стоимость: 
50,000c
* Цена на дату публикации

Готовый проект дома 184 кв.м // Артикул ЮМ-318

Оригинальный коттедж, удобное расположение комнат, рассчитаны все материалы вид и количество.
Есть внутренний дворик. Крытая терраса вокруг всего дома.

Высота потолков 3м

В проект входят:
1. 50 листов чертежей доступных для понимания строительной бригаде любого уровня. Формат А4. Разделы КЖ и АР - т.е. фундамент, стены, утепленная кровля.
2. Схемы коммуникаций: Электричество, отопление, вентиляция, водопровод, канализация, газоснабжение.
3. Расчет количества материалов. Подробный – 110 пунктов калькуляции.
4. Вы можете письменно задать вопросы по проекту - отвечу подробно.

Состав фундамента: ж/бетонная плита
Состав стен: автоклавный газобетон, лицевой кирпич, ж/б опоры
Состав кровли: плоская ж/б плита, утеплитель, стяжка, гидроизоляция

Опыт проектирования: 17 лет
Опыт строительства: 22 года

Все можно сделать по интернету. Оформить и оплатить.

Готовый проект Вы сможете рассылать его в неограниченное
количество строительных компаний и выбрать лучшую цену на строительство.

Получив подробный расчет материалов, Вы сможете узнавать и записывать
текущие цены и будете точно знать какую сумму Вы потратите на строительные материалы.

У меня есть опыт строительства домов,
поэтому я не просто "рисую",
а понимаю, как это будет построено и
я могу вас проконсультировать Вас в процессе
строительства по моему проекту.

Проект разработан так, что если строить точно по чертежам, то получится именно такой дом.
Проектировал и строил дома - для Перми, Воронежа, Москвы, Тулы,
С.-Петербурга, Челябинска, Калининграда, Сахалина, Алтая, Татарстана, Смоленска и других городов.
Есть сайт с другими моими проектами.

В проекте есть абсолютно вся информация, которая потребуется Вашим строителям для его реализации.

Моя почта: dom347@yandex.ru

Способы оплаты проекта смотрите здесь: http://aspdom.com/cab/profile

#готовыйпроект #готовыйпроектдома #готовыйпроекткоттеджа #стиль райта #построить дом #дизайн #кирпич #бревно #пила #хай тек #куб #дом с плоской кровлей #небольшой домик #стиль прерии #современный дом #барн-хаус #фундамент #кровля #ипотека #хорошие дома #лучший дом #архитектор #конструктор

Характеристики проекта:

Материал стен: 
Кирпичные, газобетон
Тип перекрытий: 
Железобетонное
Жилых комнат: 
4
Тип фундамента : 
Монолитная ж/б плита
Кровля: 
Иное...
Наружная отделка: 
Облицовочный кирпич
Автор: 

Стоимость строительства

* 4 048 000 c * Не является точным сметным расчетом

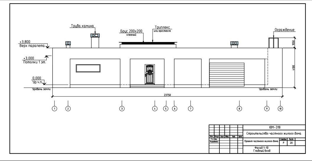
Фасады проекта





Планы проекта
Комментарии к проекту «Готовый проект дома 184 кв.м // Артикул ЮМ-318»

Популярные статьи из раздела Проектирование

Мастер спальня – это комплекс комнат в частном доме, которые...
Приглашаем специалистов строительной отрасли посетить меропр...
Разработка и управление ходом реализации загородных домов пр...
Энергоэффективность и устойчивость: Интеграция инновационных...
Безопасность и технические инновации в построении частных до...
Любая планировка не случайна. Работа над планировкой ведется...